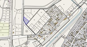
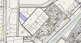
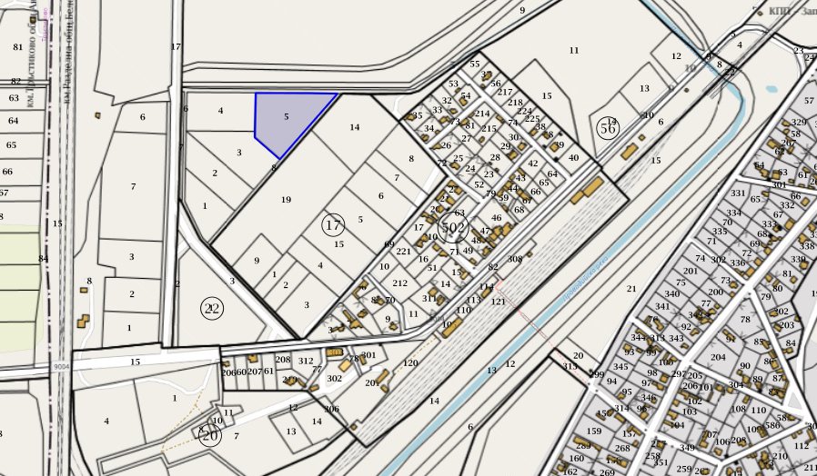
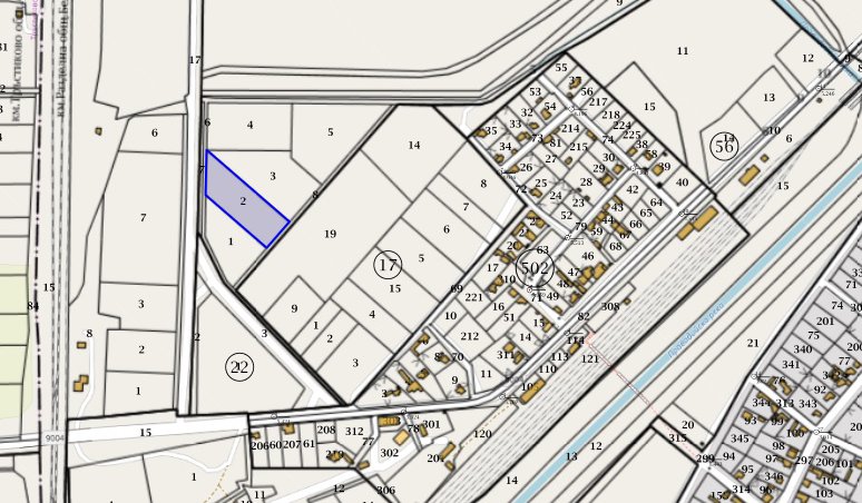
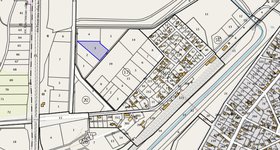
Поземлени имоти в село Разделна, местност Стара гара, община Белослав област Варна

ББР стартира процедура за продажба на 4 броя поземлени имота в село Разделна, община Белослав, област Варна

"Българска банка за развитие" ЕАД статира процедура за продажба на четири броя поземлени имота в село Разделна, местност Стара гара, община Белослав област Варна, както следва:  

  1. Поземлен имот с идентификатор 61741.18.5, с площ 6 999 кв. м
  2. Поземлен имот с идентификатор 61741.18.1, с площ 3 900 кв. м
  3. Поземлен имот с идентификатор 61741.18.2, с площ 4 699 кв. м
  4. Поземлен имот с идентификатор 61741.18.3, с площ 5 730 кв. м

Процедурата, следва правилата на Наредба за електронната платформа за продажба на имоти – частна държавна собственост. Участието в търга е явно, в електронна среда, чрез персонален електронен подпис на купувача.

Указания за регистрация и участие в процедурата  ТУК

За допълнителна информация:  02 45 29 421 или 02 93 06 390, salesbbr@bdbank.bg

 

Форма за запитване
За запитвания или повече информация, свързани с актива,
Моля попълнете формуляра.
Съгласен съм

Строго необходими бисквитки

Име

Източник

Цел

Период

csrftoken

bbr.bg

Тази бисквитка е свързана с платформата за уеб разработка Django за python. Използва се за подпомагане на защитата на уебсайта срещу атаки за фалшифициране на междусайтови заявки

1 година

Функционални бисквитки

Име

Източник

Цел

Период

yt-remote-device-id

youtube.com

YouTube настройва тази бисквитка, за да съхранява видео предпочитанията на потребителя, използващ вграден видеоклип в YouTube.

сесия

ytidb::LAST_RESULT_ENTRY_KEY

youtube.com

Бисквитката ytidb::LAST_RESULT_ENTRY_KEY се използва от YouTube за съхраняване на последния запис в резултат от търсенето, върху който потребителят е кликнал. Тази информация се използва за подобряване на потребителското изживяване чрез предоставяне на по-подходящи резултати от търсенето в бъдеще.

сесия

yt-player-headers-readable

youtube.com

Бисквитката yt-player-headers-readable се използва от YouTube за съхраняване на потребителски предпочитания, свързани с възпроизвеждане на видео и интерфейс, подобрявайки изживяването на потребителя при гледане.

сесия

yt-remote-connected-devices

youtube.com

YouTube настройва тази бисквитка, за да съхранява видео предпочитанията на потребителя, използващ вграден видеоклип в YouTube.

сесия

yt-remote-сесия-app

youtube.com

Бисквитката yt-remote-сесия-app се използва от YouTube за съхраняване на потребителски предпочитания и информация за интерфейса на вградения видеоплейър на YouTube.

сесия

yt-remote-cast-installed

youtube.com

Бисквитката yt-remote-сесия-name се използва от YouTube за съхраняване на предпочитанията на потребителя за видео плейър с помощта на вграден видеоклип в YouTube.

сесия

yt-remote-fast-check-period

youtube.com

Бисквитката yt-remote-fast-check-period се използва от YouTube за съхраняване на предпочитанията на потребителя за видео плейър за вградени видеоклипове в YouTube.

сесия

yt-remote-device-id

youtube.com

YouTube настройва тази бисквитка, за да съхранява видео предпочитанията на потребителя, използващ вграден видеоклип в YouTube.

сесия

Таргетиращи бисквитки

Име

Източник

Цел

Период

_fbp

.bbr.bg

Facebook настройва тази бисквитка да съхранява и проследява взаимодействията.

3 месеца

_ga_*

.bbr.bg

Google Analytics задава тази бисквитка да съхранява и брои показвания на страници.

1 година 1 месец 4 дена

_ga

.bbr.bg

Бисквитката _ga, инсталирана от Google Analytics, изчислява данните за посетителите, сесиите и кампаниите и също така следи използването на сайта за отчета за анализ на сайта. Бисквитката съхранява информация анонимно и присвоява произволно генериран номер за разпознаване на уникалните посетители.

1 година 1 месец 4 дена

_gid

.bbr.bg

Инсталирана от Google Analytics, бисквитката _gid съхранява информация за това как посетителите използват уебсайт, като същевременно създава аналитичен отчет за ефективността на уебсайта. Някои от данните, които се събират, включват броя на посетителите, техния източник и страниците, които посещават анонимно.

1 ден

_gat_gtag_UA_

.bbr.bg

Google Analytics задава тази бисквитка да съхранява уникален потребителски идентификатор.

1 минута

fixed-button-icon Кандидатствай fixed-button-icon Онлайн банкиране
Валутни курсове
Лихвени индекси